Appartement - PARIS

Réf. V648
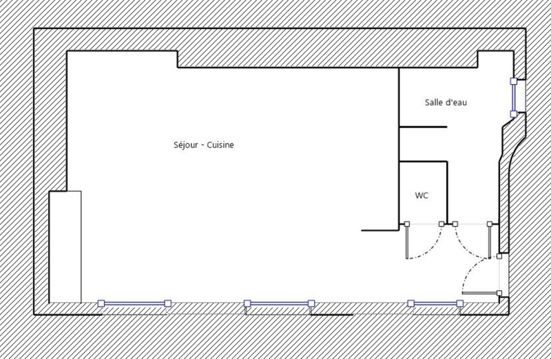
Trudaine Martyrs, rue Rodier, dans immeuble bien tenu, studio de 29,33 m2, au 5ème étage sur cour, pas d’ascenseur, clair et calme, composé de : pièce principale ouverte sur cuisine américaine, une salle d'eau avec douche, un wc séparé, espace buanderie, entrée. Idéal premier achat ou investissement. Facilement isolable.

Les informations sur les risques auxquels ce bien est exposé sont disponibles sur le site Géorisques https://www.georisques.gouv.fr
300 000 €
DPE
kWhEP/m².an
648.00
GES
kg éqCO2/m².an
21.00
Logement à consommation énergétique excessive
DPE ANCIENNE VERSION

Réf : V648
Type Base : Vente
Type Bien : Appartement
Code postal : 75009
Ville : PARIS

Nos coordonnées

23, avenue Trudaine
75009 PARIS

Tél. : +33(0)1 42 85 02 52

Fax : +33(0)9 56 29 75 61

PALISSEAUX IMMOBILIER